ПРОЕКТ-КОНЦЕПЦИЯ

 

«Проект - КОНЦЕПЦИЯ» - это уникальная услуга нашей студии, которая уже стала очень востребована в Киеве. «Проект - КОНЦЕПЦИЯ» позволяет в кратчайшие сроки, не вкладывая больших средств, сформировать полное видение Вашего будущего интерьера. С Вами будет работать команда профессиональных дизайнеров, и за 14 дней создаст дизайн - концепцию с учётом всех Ваших пожеланий.

В этом проекте решаются все ключевые этапы работы над интерьером:

  • Планировочное решение;
  • Стилистический разбор интерьера;
  • Колористика и текстурирование;
  • Проектная документация.

В пакет входит вся основная проектная документация, с помощью которой можно смело начинать ремонтные работы.

Заказав у нас «Проект - КОНЦЕПЦИЮ» Вы в течение 14 дней получите:

  • 3D визуализация всех помещений;
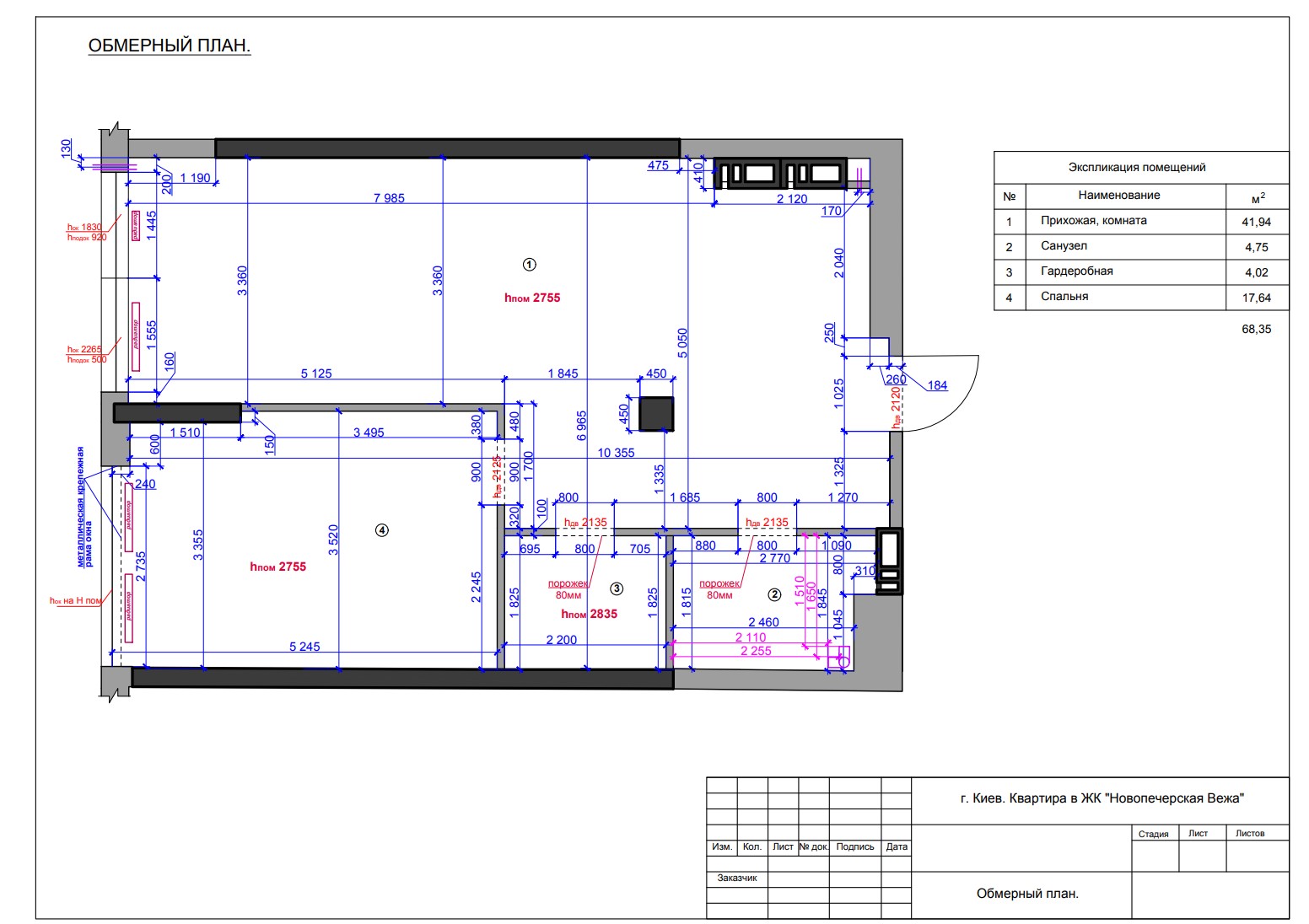
  • Обмерный план помещения;
  • План демонтажа (сносимых перегородок);
  • Кладочный план (возводимых перегородок и конструкций);
  • План расстановки мебели и сантехнического оборудования;
  • План электроосвещения;
  • План размещения розеток;
  • План потолков;
  • Cхема напольных покрытий;
  • Рекомендации по подбору мебели и материалов.


Дополнительные возможности 

При необходимости, Вы всегда можете заказать дополнительно:

  • любые чертежи, необходимые строителям;
  • осуществить подбор отделочных материалов с дизайнером.

 

От Вас необходимо всего лишь две вещи:
1. На кануне встречи определиться с Вашими пожеланиями;
2. Встретиться с дизайнером на объекте.

Стоимость услуги «Проект-концепция» — всего
15 000 грн.*

* (цена действует на объекты до 70 м2)